View All Builders
View All Designs
Homeshelf will be in touch shortly with top home designs, floor plans and pricing!
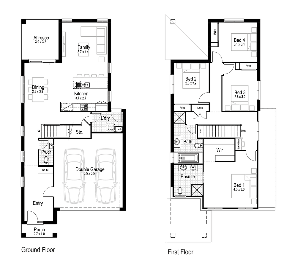
4 Beds
2.5 Baths
2 Garage
23.9 - 31.2 squares
lot width 9.5 - 10.6m
Double storey
Contemporary new house design
floorplan: 10819 -- 10819
floorplan: 10819 -- 10820
floorplan: 10819 -- 10821
floorplan: 10819 -- 10822
floorplan: 10819 -- 10823
*Base prices provided by the builder may not include standard building fees or site costs.Click here now to check the complete build price in your area.
Level 1, 85 George St. PARRAMATTA NSW 2150
View the privacy policy
3 - 3.5 Baths
21.1 - 24.3 squares
2.5 - 4 Baths
30.1 - 41 squares
5 Beds
4 Baths
40 squares
32.9 - 40.3 squares
3 Baths
39.6 squares
3 - 4 Beds
25.9 - 30.3 squares
Turquoise by Hudson Homes NSW
Request complete pricing on the Turquoise and current specials on offer.