The Regatta by Aspire Designer Homes

Snapshot

Bed Icon

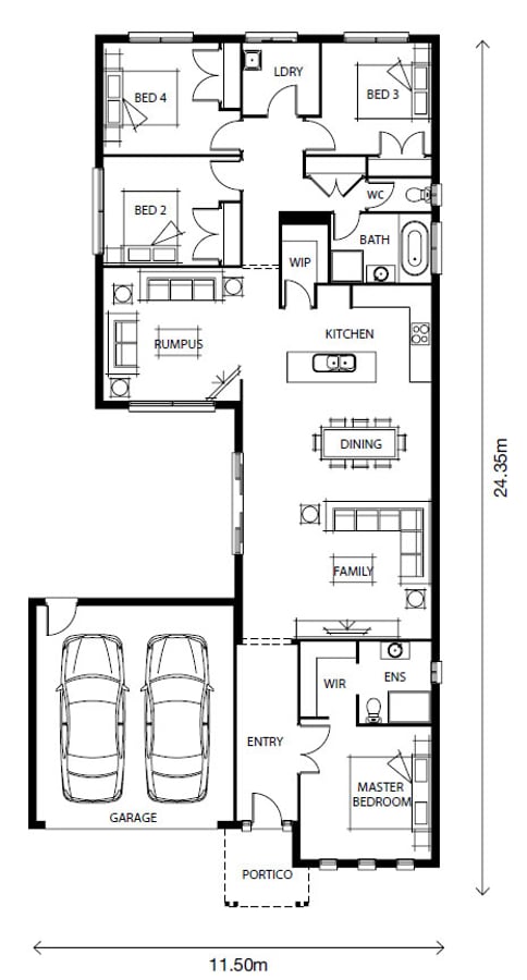
4 Beds

Bathub Icon

2 Baths

Garage Icon

2 Garage

Size Icon

23.5 squares

Lot Icon

lot width 12.5m

Type of build

Stories

Single storey

Style

Contemporary new house design

Home Design

Name Living Alfresco Theatre Study Butlers Lot Width Squares Price
The Regatta 23 2 - - - - 12.5 23.5 $POA
Request Home Designs
0/0

*Base prices provided by the builder may not include standard building fees or site costs.
Click here now to check the complete build price in your area.

About Aspire Designer Homes

Calendar Icon

Established 2012

Sofa Icon

100 homes per year

Build Locations:

Melbourne South East, Mornington Peninsula, Phillip Island/Bass Coast


Aspire Designer Homes is committed to creating amazing custom homes that capture the essence of your lifestyle and give you a place where you love to live. With decades of experience building custom homes, we are committed to finding Solutions for Problems and specialise in designing homes for sloping and irregular shaped blocks, as well as other challenges many builders won't work with. Our teams dedicated, professional and personal approach will support you with all aspects of your building journey by cutting through the noise and confusion with expert and honest advice to design and build a home you can be proud of. We look forward to the opportunity to meet you soon and speak with you about the vision you have for your new home.

Read more
Head Office Location:

34 Arbor Way Carrum Downs VIC 3201

Request from Home Builder
Enquire about this design