View All Builders
View All Designs
Homeshelf will be in touch shortly with top home designs, floor plans and pricing!
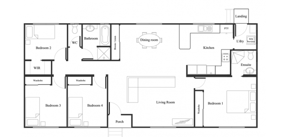
4 Beds
2 Baths
- Garage
12.4 squares
lot width -m
Single storey
Coastal new house design
kitchen: 0 -- 1018
*Base prices provided by the builder may not include standard building fees or site costs.Click here now to check the complete build price in your area.
816 Mountain Highway Bayswater VIC 3153
View the privacy policy
3 Baths
2 Garage
63 squares
3 Beds
39 squares
32 squares
22.2 - 25.6 squares
2 - 3 Beds
14.6 - 16 squares
1 Baths
14.2 squares
The Plenty by Todd Devine Homes
Request complete pricing on the The Plenty and current specials on offer.