View All Builders
View All Designs
Homeshelf will be in touch shortly with top home designs, floor plans and pricing!
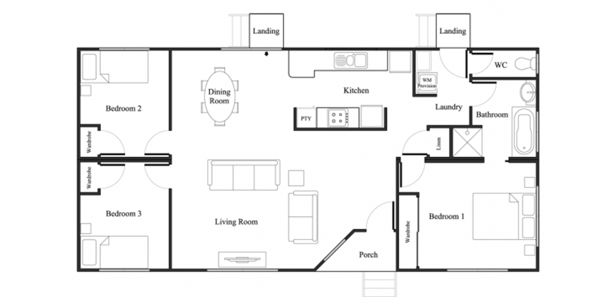
3 Beds
1 Baths
- Garage
9.7 squares
lot width -m
Single storey
Traditional new house design
facade: 0 -- 1024
*Base prices provided by the builder may not include standard building fees or site costs.Click here now to check the complete build price in your area.
816 Mountain Highway Bayswater VIC 3153
View the privacy policy
4 Beds
2 Baths
2 Garage
28.8 squares
5 Beds
56.6 squares
28.7 squares
28.4 squares
27.4 squares
23.9 - 25.4 squares
The Ovens by Todd Devine Homes
Request complete pricing on the The Ovens and current specials on offer.