View All Builders
View All Designs
Homeshelf will be in touch shortly with top home designs, floor plans and pricing!
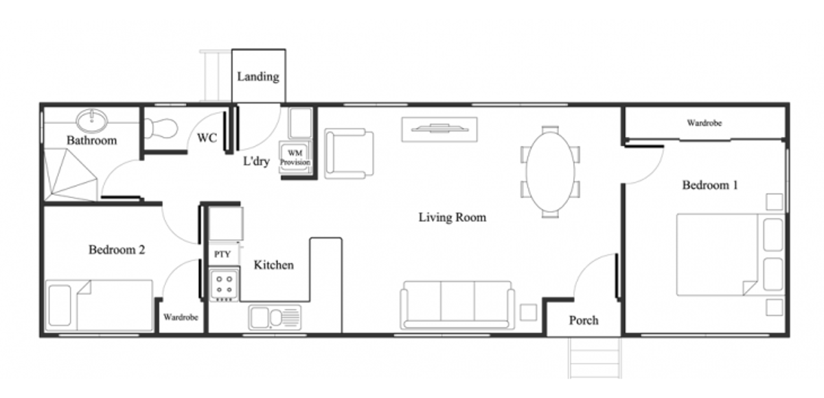
2 Beds
1 Baths
- Garage
6.6 squares
lot width -m
Single storey
Coastal new house design
facade: 0 -- 1017
*Base prices provided by the builder may not include standard building fees or site costs.Click here now to check the complete build price in your area.
816 Mountain Highway Bayswater VIC 3153
View the privacy policy
4 Beds
3 Baths
2 Garage
63 squares
3 Beds
2 Baths
39 squares
32 squares
22.2 - 25.6 squares
2 - 3 Beds
14.6 - 16 squares
14.2 squares
The Mitchell by Todd Devine Homes
Request complete pricing on the The Mitchell and current specials on offer.