View All Builders
View All Designs
Homeshelf will be in touch shortly with top home designs, floor plans and pricing!
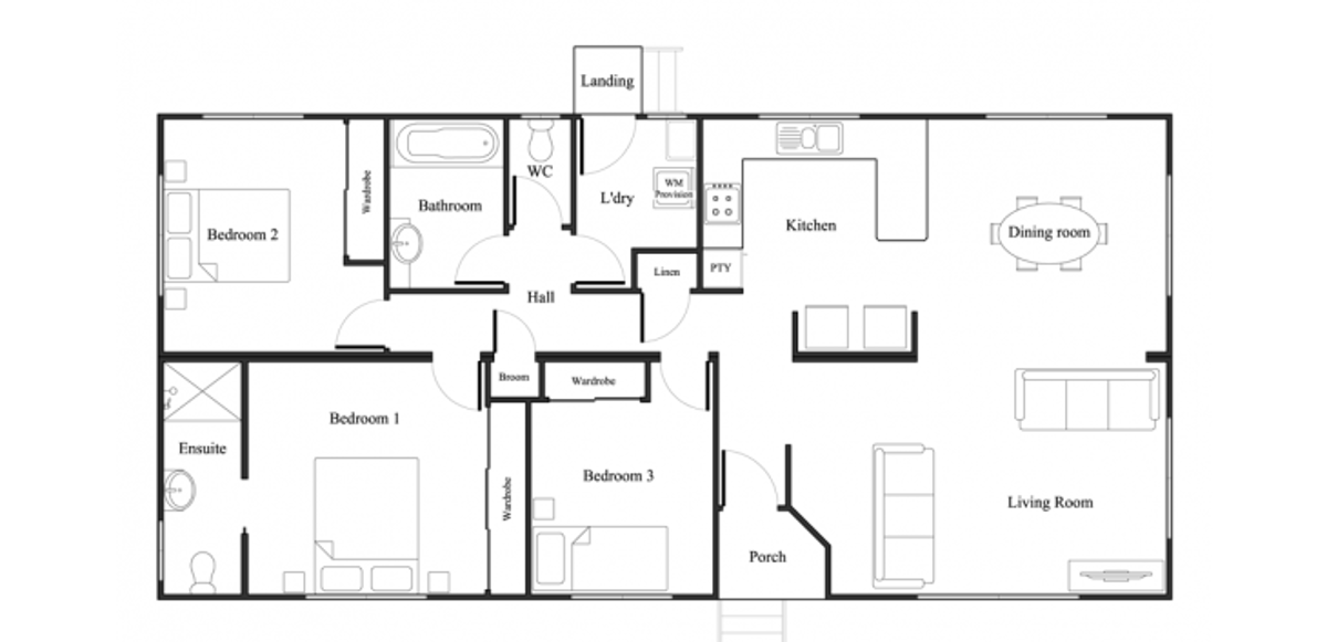
3 Beds
2 Baths
- Garage
11.6 squares
lot width -m
Single storey
Contemporary new house design
facade: 0 -- 1026
*Base prices provided by the builder may not include standard building fees or site costs.Click here now to check the complete build price in your area.
816 Mountain Highway Bayswater VIC 3153
View the privacy policy
3 - 4 Beds
2 Garage
17.9 - 23.1 squares
4 Beds
24.7 squares
33.1 squares
24.1 squares
27.4 - 27.6 squares
22.5 squares
The Goulburn by Todd Devine Homes
Request complete pricing on the The Goulburn and current specials on offer.