View All Builders
View All Designs
Homeshelf will be in touch shortly with top home designs, floor plans and pricing!
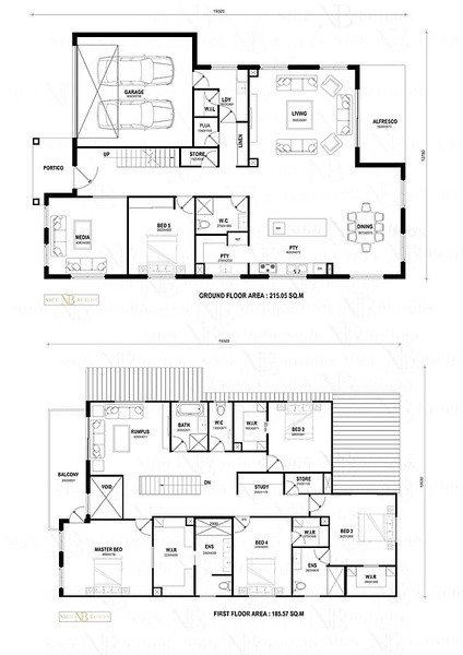
5 Beds
3.5 Baths
2 Garage
43.1 squares
lot width -m
Double storey
new house design
floorplan: 11176 -- 11176
*Base prices provided by the builder may not include standard building fees or site costs.Click here now to check the complete build price in your area.
Established 2014
100+ homes per year
66 Reinhold Cres Chermside QLD 4032
View the privacy policy
4 - 5 Beds
2 - 4 Baths
4.4 - 54.8 squares
4 Beds
2 - 3 Baths
4.7 - 54.4 squares
3 - 4 Baths
38.1 - 44.5 squares
2.5 Baths
44.8 squares
3 Beds
1 Garage
160.3 squares
Sunnybank by Nice Builds
Request complete pricing on the Sunnybank and current specials on offer.