View All Builders
View All Designs
Homeshelf will be in touch shortly with top home designs, floor plans and pricing!
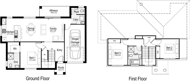
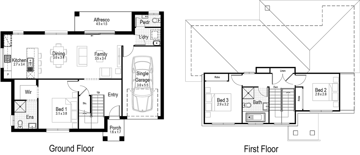
3 - 4 Beds
2.5 Baths
1 - 2 Garage
16 - 20.8 squares
lot width 10.3 - 13.9m
Double storey
Contemporary new house design
floorplan: 10772 -- 10771
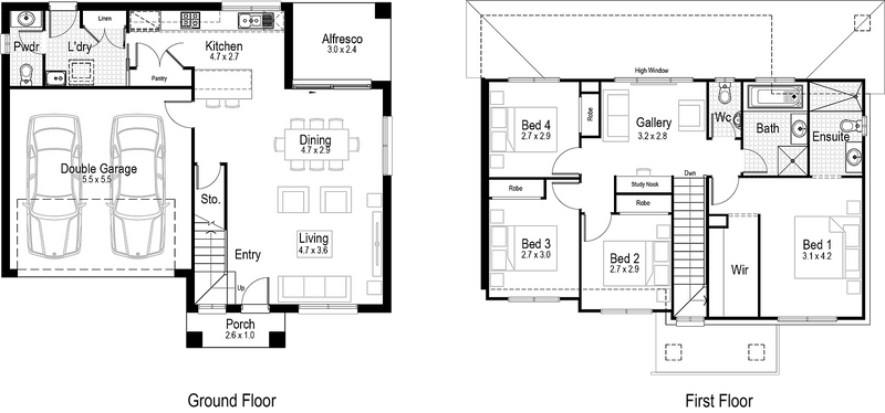
floorplan: 10772 -- 10772
floorplan: 10772 -- 10773
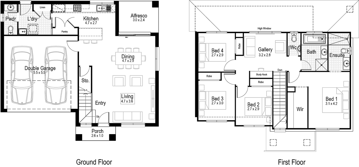
floorplan: 10772 -- 10774
*Base prices provided by the builder may not include standard building fees or site costs.Click here now to check the complete build price in your area.
Level 1, 85 George St. PARRAMATTA NSW 2150
View the privacy policy
4 Beds
3 - 3.5 Baths
2 Garage
21.1 - 24.3 squares
2.5 - 4 Baths
30.1 - 41 squares
5 Beds
4 Baths
40 squares
32.9 - 40.3 squares
38.6 - 40.5 squares
3 Baths
39.6 squares
Robin by Hudson Homes NSW
Request complete pricing on the Robin and current specials on offer.