View All Builders
View All Designs
Homeshelf will be in touch shortly with top home designs, floor plans and pricing!
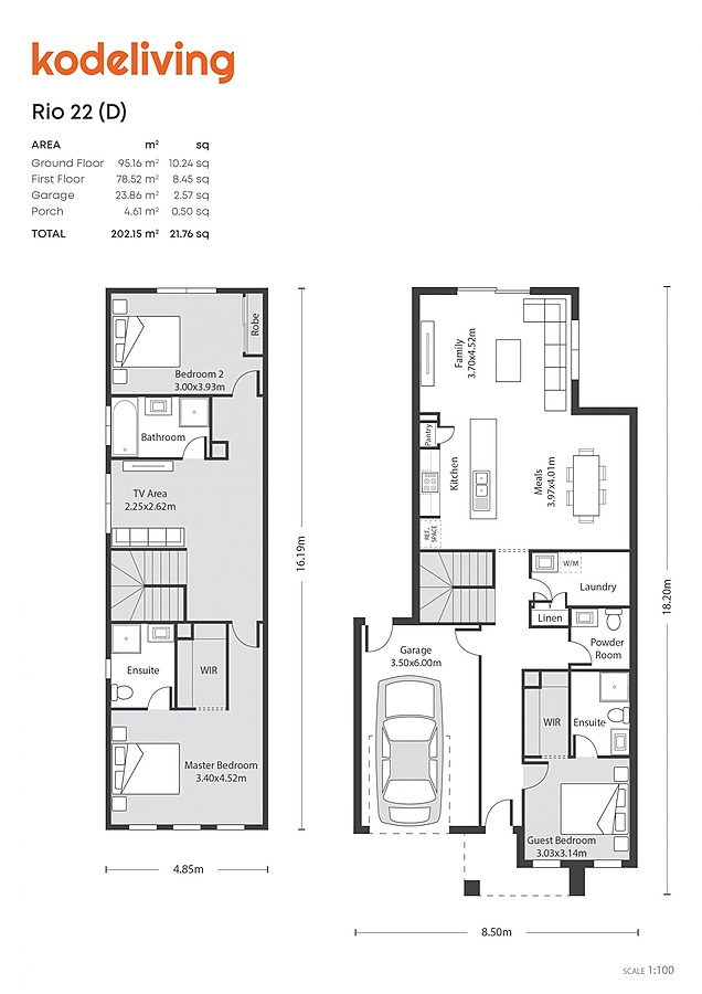
3 - 4 Beds
2.5 - 3 Baths
1 - 2 Garage
19.4 - 21.8 squares
lot width 8.5m
Double storey
Modern new house design
floorplan: 8138 -- 8137
floorplan: 8138 -- 8138
*Base prices provided by the builder may not include standard building fees or site costs.Click here now to check the complete build price in your area.
Established 2022
45 homes per year
North, West, South East, Geelong, Ballarat
6 Brinnand Lane Moonee Ponds VIC 3039
View the privacy policy
4 Beds
3 Baths
2 Garage
25.4 - 37.2 squares
2.5 Baths
44.8 squares
2 - 3 Baths
4.7 - 54.4 squares
4 - 5 Beds
2 - 4 Baths
4.4 - 54.8 squares
2 Baths
3.6 - 43 squares
3 Beds
29.5 squares
Rio Double by Kode Living
Request complete pricing on the Rio Double and current specials on offer.