Madison by Eden Brae Homes

Snapshot

Bed Icon

4 Beds

Bathub Icon

2.5 - 4.5 Baths

Garage Icon

2 Garage

Size Icon

36.7 - 41.7 squares

Lot Icon

lot width 12.2 - 13.2m

Type of build

Stories

Double storey

Style

Contemporary new house design

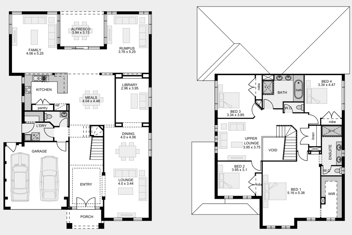
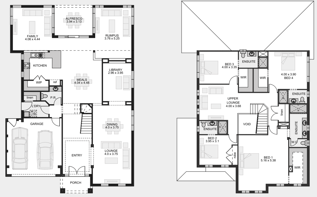
Home Design

Name Living Alfresco Theatre Study Butlers Lot Width Squares Price
Madison 37 MK3 3 1 - - - 12.9 37.3 $POA
Madison 37 MK4 4 1 - - - 12.2 36.7 $POA
Madison 41 MK3 4 1 - - - 13.2 40.7 $POA
Madison 42 MK3 (Ensuite) 4 1 - - - 13.2 41.7 $POA
Request Home Designs
0/0

*Base prices provided by the builder may not include standard building fees or site costs.
Click here now to check the complete build price in your area.

About Eden Brae Homes


Head Office Location:

2 Craftsman Close Beresfield NSW 2322

Request from Home Builder
Enquire about this design