View All Builders
View All Designs
Homeshelf will be in touch shortly with top home designs, floor plans and pricing!
5 Beds
2 Baths
2 Garage
52 squares
lot width -m
Double storey
Contemporary new house design
floorplan: 0 -- 9978
*Base prices provided by the builder may not include standard building fees or site costs.Click here now to check the complete build price in your area.
Suite 7/2, Gilda Court Mulgrave VIC 3170
View the privacy policy
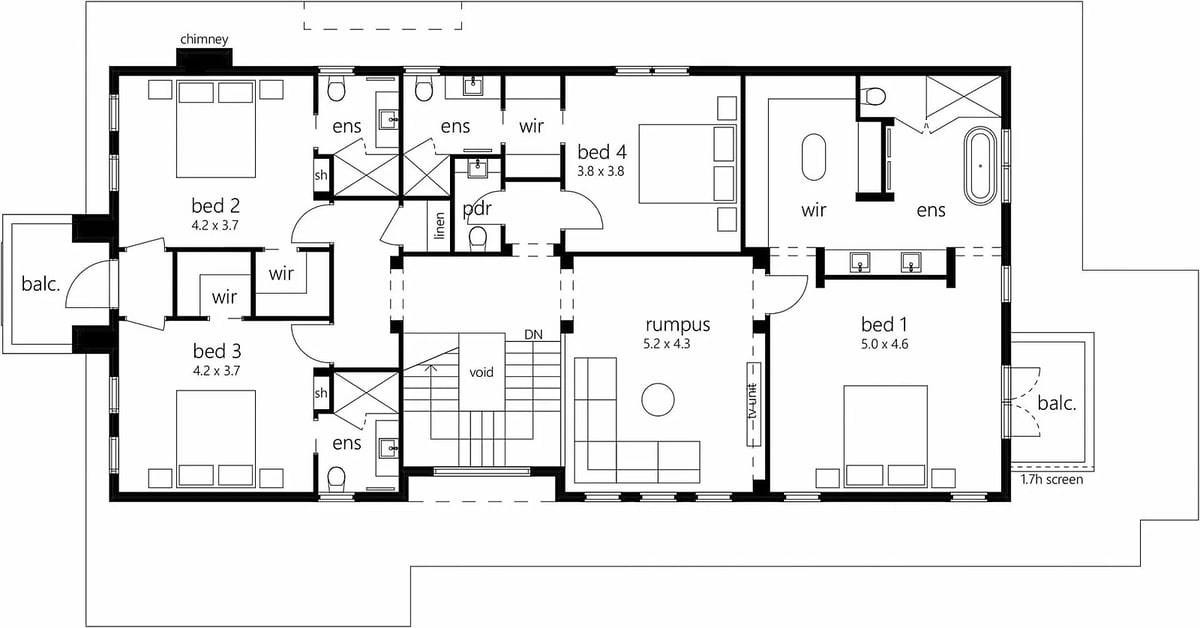
4 Beds
4 Garage
75.4 squares
5 Baths
54.1 squares
55.3 squares
4 Baths
52.7 squares
52.4 squares
56.4 squares
Alto by Vive Homes
Request complete pricing on the Alto and current specials on offer.