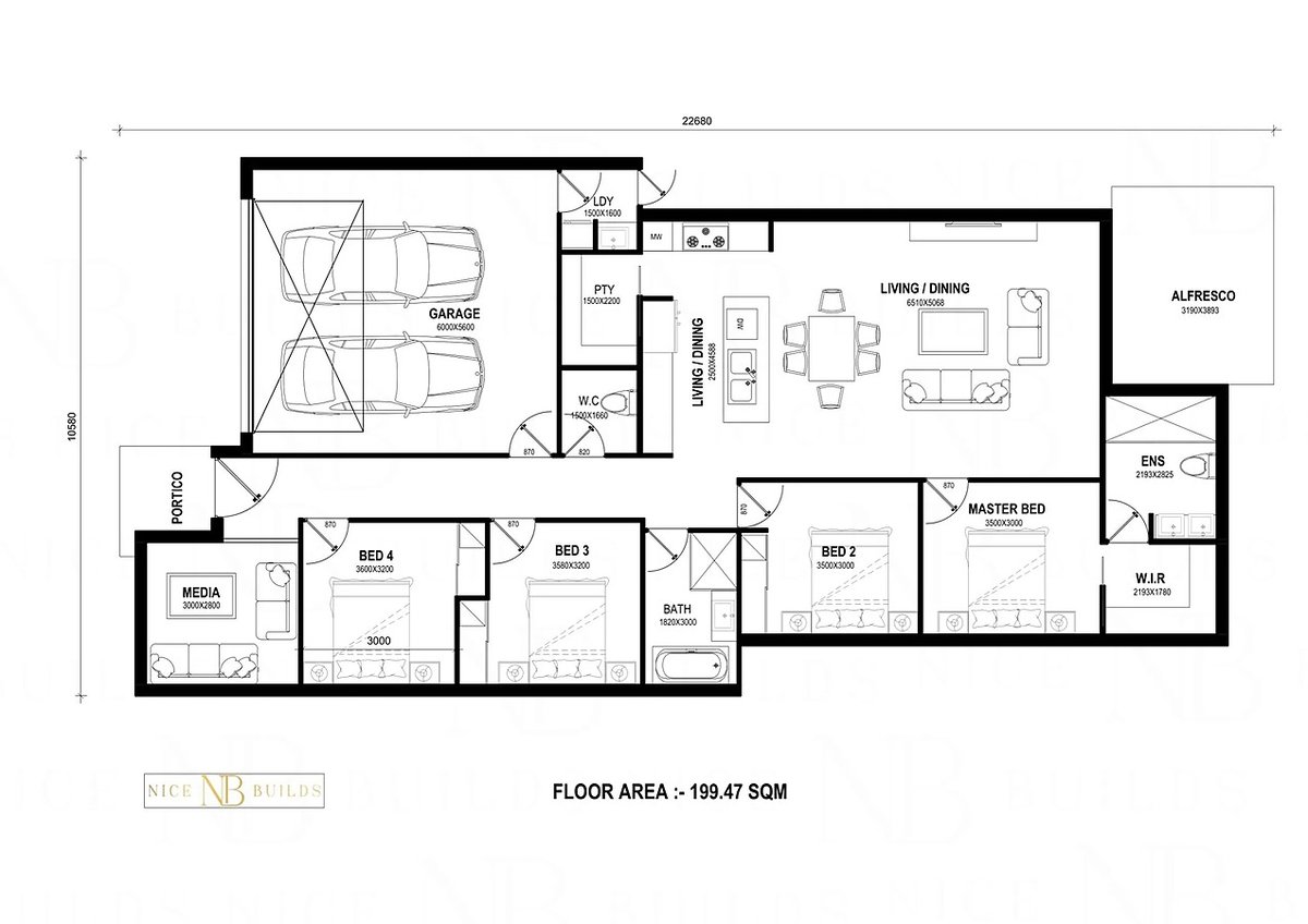
Newcastle by Nice Builds

Snapshot

Bed Icon

4 Beds

Bathub Icon

2 Baths

Garage Icon

2 Garage

Size Icon

21.5 squares

Lot Icon

lot width -m

Type of build

Stories

Single storey

Style

new house design

Home Design

Name Living Alfresco Theatre Study Butlers Lot Width Squares Price
Newcastle - - - - - - 21.5 $POA
Request Home Designs
0/0

*Base prices provided by the builder may not include standard building fees or site costs.
Click here now to check the complete build price in your area.

About Nice Builds

Calendar Icon

Established 2014

Sofa Icon

100+ homes per year


Head Office Location:

66 Reinhold Cres Chermside QLD 4032

Request from Home Builder
Enquire about this design