View All Builders
View All Designs
Homeshelf will be in touch shortly with top home designs, floor plans and pricing!
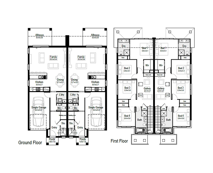
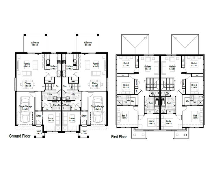
3 - 4 Beds
2.5 Baths
1 Garage
33.6 - 46.6 squares
lot width 14.8 - 18.4m
Double storey
Contemporary new house design
floorplan: 10693 -- 10689
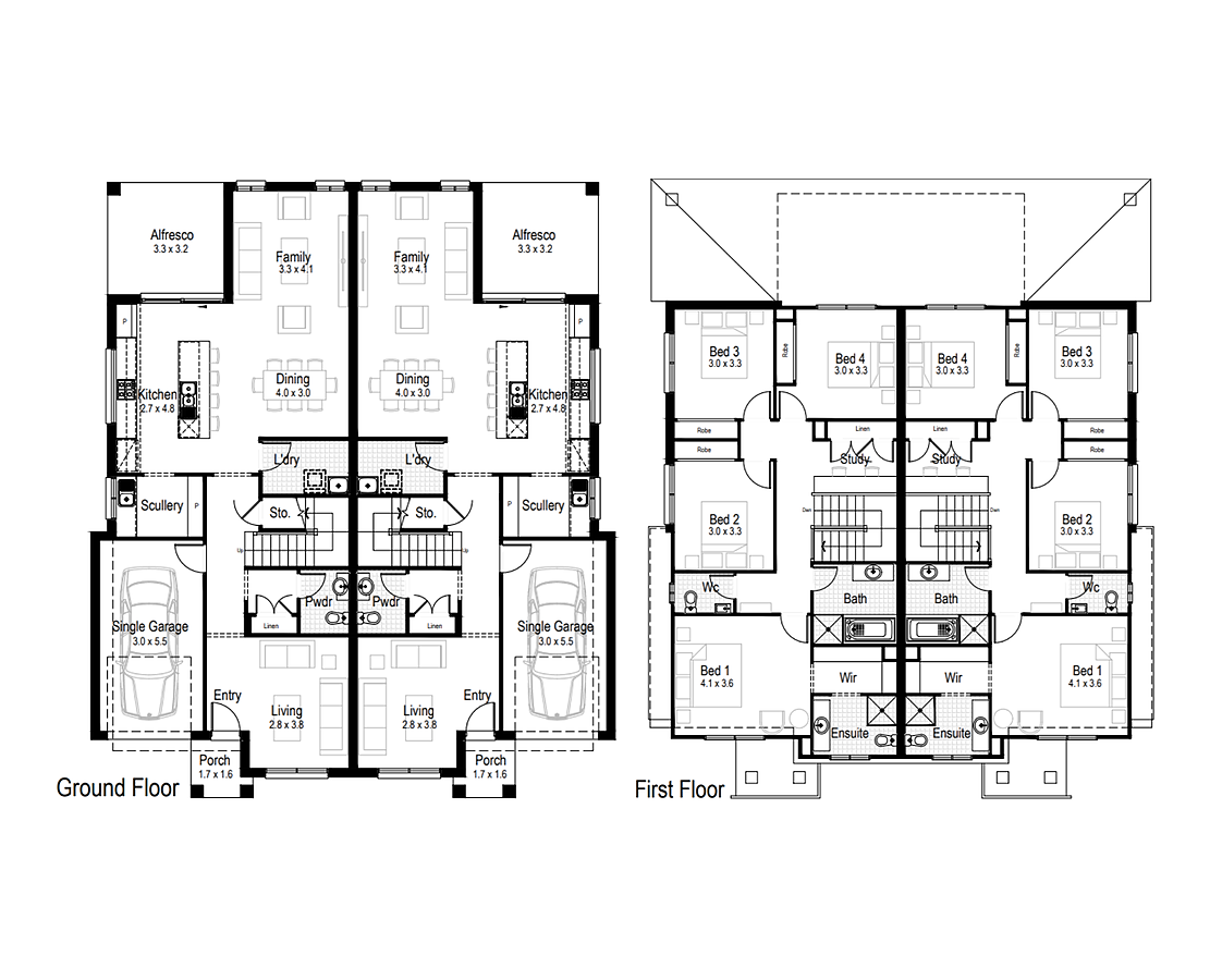
floorplan: 10693 -- 10690
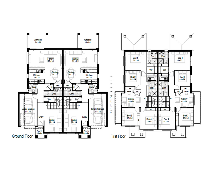
floorplan: 10693 -- 10691
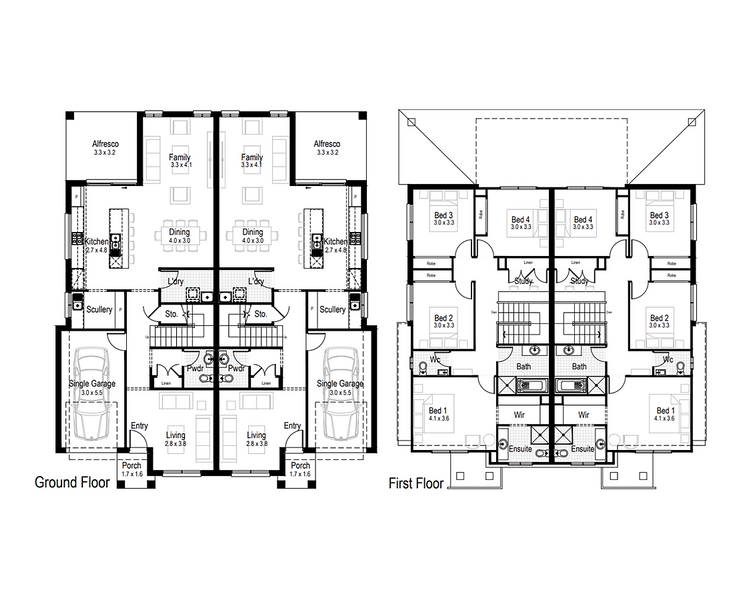
floorplan: 10693 -- 10692
floorplan: 10693 -- 10693
*Base prices provided by the builder may not include standard building fees or site costs.Click here now to check the complete build price in your area.
Level 1, 85 George St. PARRAMATTA NSW 2150
View the privacy policy
4 Beds
2.5 - 4 Baths
2 Garage
30.1 - 41 squares
5 Beds
4 Baths
40 squares
38.6 - 40.5 squares
3 Baths
39.6 squares
37.8 squares
4 - 5 Beds
2.5 - 3.5 Baths
36.8 - 42.2 squares
Magnolia by Hudson Homes NSW
Request complete pricing on the Magnolia and current specials on offer.