London Single by Kode Living

Snapshot

Bed Icon

3 - 4 Beds

Bathub Icon

2 Baths

Garage Icon

2 Garage

Size Icon

22.4 - 25.7 squares

Lot Icon

lot width 12.5m

Type of build

Stories

Single storey

Style

Modern new house design

Home Design

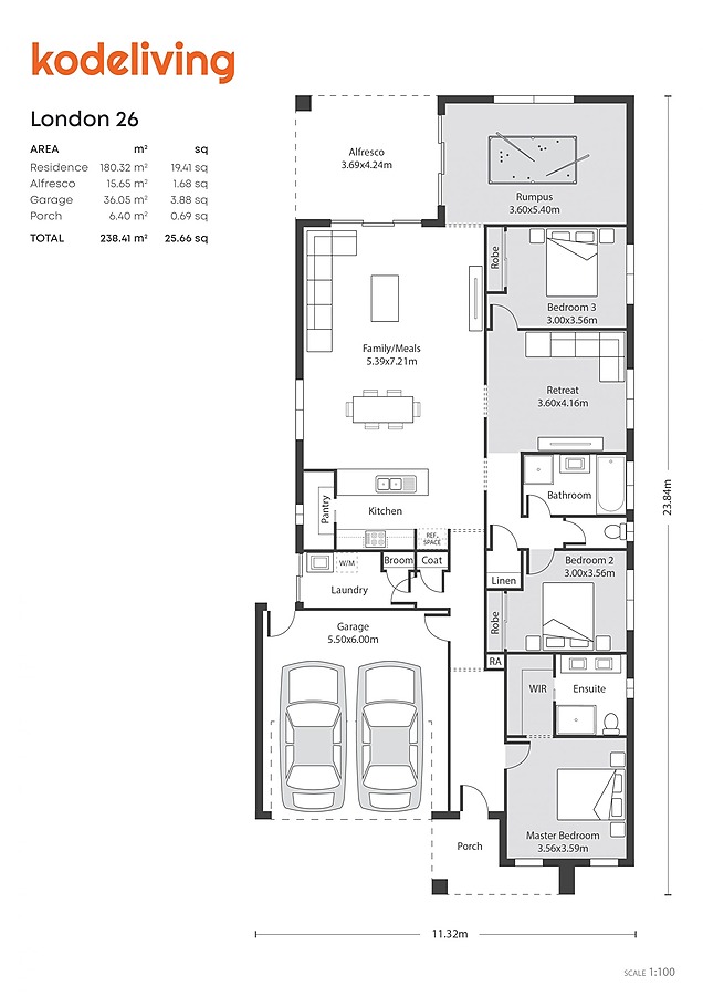
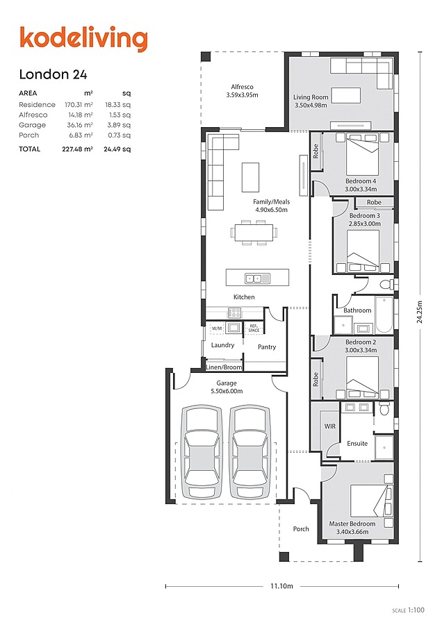
Name Living Alfresco Theatre Study Butlers Lot Width Squares Price
London 22 2 1 - - - 12.5 22.4 From $274,330*
London 24 2 1 - - - 12.5 24.5 From $290,098*
London 26 3 1 - - - 12.5 25.7 From $293,977*
Request Home Designs
0/0

*Base prices provided by the builder may not include standard building fees or site costs.
Click here now to check the complete build price in your area.

About Kode Living

Calendar Icon

Established 2022

Sofa Icon

45 homes per year

Build Locations:

North, West, South East, Geelong, Ballarat


Head Office Location:

6 Brinnand Lane Moonee Ponds VIC 3039

Request from Home Builder
Enquire about this design