Kawana by Hallmark Homes

Snapshot

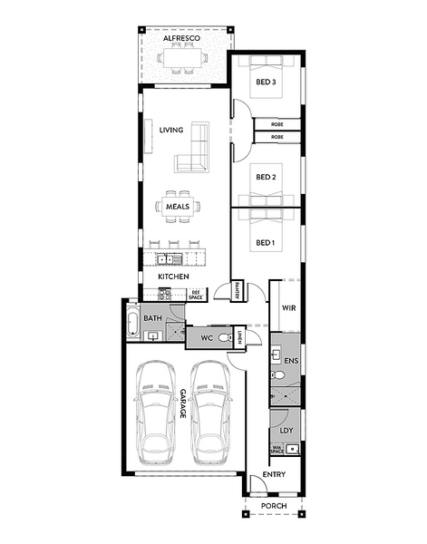
Bed Icon

3 Beds

Bathub Icon

2 Baths

Garage Icon

2 Garage

Size Icon

17.4 - 19.5 squares

Lot Icon

lot width 10m

Type of build

Stories

Single storey

Style

Contemporary new house design

Home Design

Name Living Alfresco Theatre Study Butlers Lot Width Squares Price
Kawana 159 - Luma Range 2 1 - - - 10 17.4 $POA
Kawana 182 - Luma Range 1 1 - - - 10 19.5 $POA
Request Home Designs
0/0

*Base prices provided by the builder may not include standard building fees or site costs.
Click here now to check the complete build price in your area.

About Hallmark Homes


Head Office Location:

60 Smith Street Southport QLD 4215

Request from Home Builder
Enquire about this design