Kalarney by Freedom by Metricon

Snapshot

Bed Icon

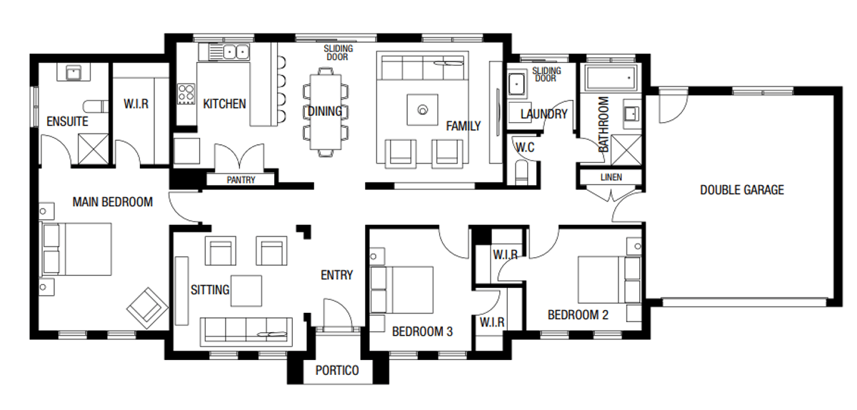
3 - 4 Beds

Bathub Icon

2 Baths

Garage Icon

2 Garage

Size Icon

17.6 - 24.7 squares

Lot Icon

lot width 26 - 31.5m

Type of build

Stories

Single storey

Style

new house design

Home Design

Name Living Alfresco Theatre Study Butlers Lot Width Squares Price
Kalarney 22 2 - - - - 26 17.6 $POA
Kalarney 24 2 - - 1 - 27.3 20.1 $POA
Kalarney 29 3 - - - - 31.5 24.4 $POA
Kalarney 29A 2 - - 1 - 29 24.7 $POA
Request Home Designs
0/0

*Base prices provided by the builder may not include standard building fees or site costs.
Click here now to check the complete build price in your area.

About Freedom by Metricon

Calendar Icon

Established 1976

Sofa Icon

4000 homes per year


Head Office Location:

501 Blackburn Rd Mt Waverley VIC 3149

Request from Home Builder
Enquire about this design