View All Builders
View All Designs
Homeshelf will be in touch shortly with top home designs, floor plans and pricing!
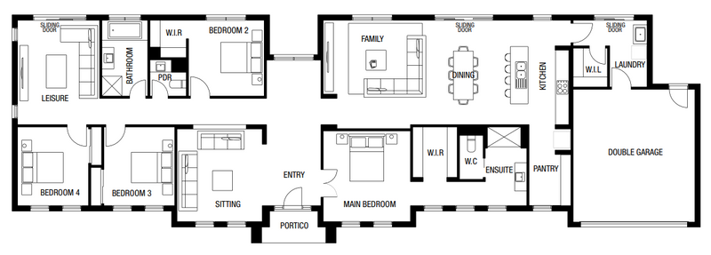
4 Beds
2 - 3.5 Baths
2 Garage
25.7 - 29.9 squares
lot width 32.5 - 36.6m
Single storey
new house design
floorplan: 10493 -- 10493
floorplan: 10493 -- 10494
*Base prices provided by the builder may not include standard building fees or site costs.Click here now to check the complete build price in your area.
501 Blackburn Rd Mt Waverley VIC 3149
View the privacy policy
2 Baths
24.7 - 26.9 squares
33.1 squares
28.8 squares
3 - 4 Beds
2 - 2.5 Baths
24.4 - 38.6 squares
27.4 - 27.6 squares
31 squares
Davenport by Metricon Freedom
Request complete pricing on the Davenport and current specials on offer.