Clara by Metricon Freedom

Snapshot

Bed Icon

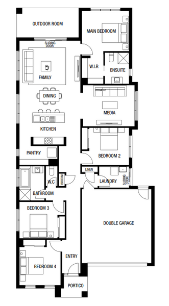
4 Beds

Bathub Icon

2 Baths

Garage Icon

2 Garage

Size Icon

15.2 - 20.9 squares

Lot Icon

lot width 12.5 - 14m

Type of build

Stories

Single storey

Style

new house design

Home Design

Name Living Alfresco Theatre Study Butlers Lot Width Squares Price
Clara 21 2 1 - - - 12.5 15.2 $POA
Clara 24 2 1 - - - 12.5 18.2 $POA
Clara 27 2 1 - - - 14 20.9 $POA
Request Home Designs
0/0

*Base prices provided by the builder may not include standard building fees or site costs.
Click here now to check the complete build price in your area.

About Metricon Freedom


Head Office Location:

501 Blackburn Rd Mt Waverley VIC 3149

Request from Home Builder
Enquire about this design