View All Builders
View All Designs
Homeshelf will be in touch shortly with top home designs, floor plans and pricing!
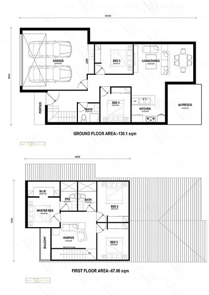
5 Beds
2 Baths
2 Garage
21.2 squares
lot width -m
Double storey
new house design
floorplan: 11171 -- 11171
*Base prices provided by the builder may not include standard building fees or site costs.Click here now to check the complete build price in your area.
Established 2014
100+ homes per year
66 Reinhold Cres Chermside QLD 4032
View the privacy policy
4 Beds
3 Baths
25.4 - 37.2 squares
3 - 3.5 Baths
21.1 - 24.3 squares
2.5 - 4 Baths
30.1 - 41 squares
4 Baths
40 squares
2 - 3 Baths
36.2 - 39.8 squares
2.5 Baths
32.9 - 40.3 squares
Brighton by Nice Builds
Request complete pricing on the Brighton and current specials on offer.