View All Builders
View All Designs
Homeshelf will be in touch shortly with top home designs, floor plans and pricing!
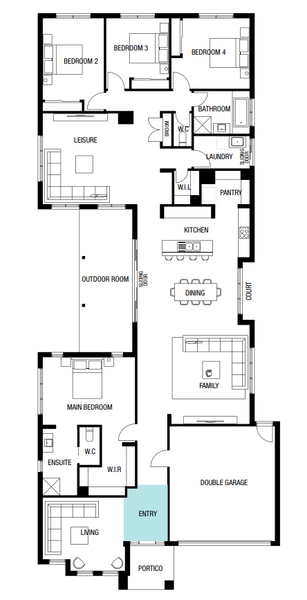
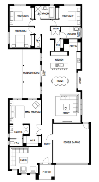
4 Beds
2 Baths
2 Garage
20.2 - 27.2 squares
lot width 14m
Single storey
new house design
floorplan: 10479 -- 10479
floorplan: 10479 -- 10480
floorplan: 10479 -- 10481
*Base prices provided by the builder may not include standard building fees or site costs.Click here now to check the complete build price in your area.
501 Blackburn Rd Mt Waverley VIC 3149
View the privacy policy
24.7 - 26.9 squares
3 - 4 Beds
17.9 - 23.1 squares
24.7 squares
33.1 squares
28.8 squares
2 - 2.5 Baths
24.4 - 38.6 squares
Avery by Metricon Freedom
Request complete pricing on the Avery and current specials on offer.