Abbey by Hallmark Homes

Snapshot

Bed Icon

3 - 4 Beds

Bathub Icon

2 Baths

Garage Icon

2 Garage

Size Icon

18.1 - 20.6 squares

Lot Icon

lot width 10.5m

Type of build

Stories

Single storey

Style

Contemporary new house design

Home Design

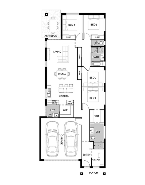
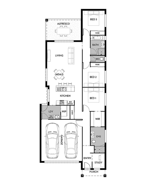
Name Living Alfresco Theatre Study Butlers Lot Width Squares Price
Abbey 168 - Luma Range 1 1 - 1 - 10.5 18.1 $POA
Abbey 188 - Luma Range 1 1 - 1 - 10.5 20.3 $POA
Abbey 191 - Luma Range 1 1 - 1 - 10.5 20.6 $POA
Request Home Designs
0/0

*Base prices provided by the builder may not include standard building fees or site costs.
Click here now to check the complete build price in your area.

About Hallmark Homes


Head Office Location:

60 Smith Street Southport QLD 4215

Request from Home Builder
Enquire about this design