Located in Woodcutters Way (Rivulet) | $593,700 *TITLED & PREMIUM TURNKEY Ponto 18

Snapshot

Bed Icon 

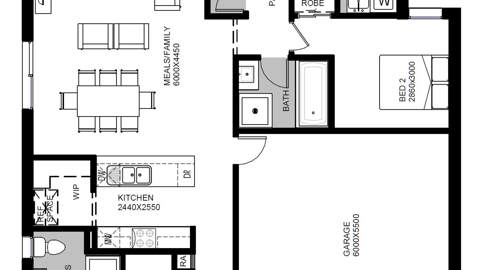
4 Beds

Bathub Icon 

2 Baths

Garage Icon 

2 Garage

Size Icon 

17.98 squares

Lot Icon 

356m (Approx)

Builder

H&L Victoria

Type of design

H&L Victoria

Status

H&L Victoria

Description

This is a NEW house and land package to be constructed, NOT an established home. *First Home Buyer Price. WE'LL PAY $2000 PER MONTH** TO YOU DURING YOUR CONSTRUCTION **Terms and Conditions Apply PREMIUM TURNKEY HOMES WITH MORE VALUE IN EVERY BASE PRICE Featuring more than $70,000 worth of premium inclusions upfront, the Click & Collect range by H&L Victoria provides First Home Buyers and busy Investors with a simplified process and a fully completed turnkey solution for their new home needs. PREMIUM INCLUSIONS - Front & rear landscaping - Half share fencing & driveway - Flooring throughout - Higher ceilings - LED downlights throughout - Modern appliances including dishwasher - Overhead cupboards to kitchen - Blinds throughout - 5kW split system cooling - Ducted heating throughout - Tiled shower bases - Chrome finish double towel rails and toilet roll holders - Framed mirror or vinyl sliding doors to robes - Brick infills over windows - Remote control garage - Window locks & flyscreens to all openable windows - Clothesline and letter box - NBN connection - Multiple facade options This is a house and land package which has not been constructed. Please enquire to find out estimated build time. The facade image shown is for illustrative purposes only. * Pricing correct at time of publication, but subject to change without notice due to (not limited to) land delays and regulation changes. Package price excludes stamp duty on land, legal fees and conveyancing costs including titles and property report. Floorplan is a representation of a standard facade unless otherwise stated. H & L reserves the right to alter the images or descriptions without notice. External & Internal photographs are for visual purposes only. Finance eligibility will depend on individual circumstances and applicable lending criteria. Price advertised is inclusive of the First Home Buyer Grant. If this is not applicable to you, then $10,000 will need to be added to the advertised price. Please refer to the SRO website regarding eligibility (www.sro.vic.gov.au/first-home-owner#fhog).

Home Design

About H&L Victoria

Calendar Icon

Established 2007

Sofa Icon

1000 homes per year

Build Locations:

Lot 305, Woodcutters Way (Rivulet), Bonshaw VIC 3352 Australia


This is a NEW house and land package to be constructed, NOT an established home. *First Home Buyer Price. WE'LL PAY $2000 PER MONTH** TO YOU DURING YOUR CONSTRUCTION **Terms and Conditions Apply PREMIUM TURNKEY HOMES WITH MORE VALUE IN EVERY BASE PRICE Featuring more than $70,000 worth of premium inclusions upfront, the Click & Collect range by H&L Victoria provides First Home Buyers and busy Investors with a simplified process and a fully completed turnkey solution for their new home needs. PREMIUM INCLUSIONS - Front & rear landscaping - Half share fencing & driveway - Flooring throughout - Higher ceilings - LED downlights throughout - Modern appliances including dishwasher - Overhead cupboards to kitchen - Blinds throughout - 5kW split system cooling - Ducted heating throughout - Tiled shower bases - Chrome finish double towel rails and toilet roll holders - Framed mirror or vinyl sliding doors to robes - Brick infills over windows - Remote control garage - Window locks & flyscreens to all openable windows - Clothesline and letter box - NBN connection - Multiple facade options This is a house and land package which has not been constructed. Please enquire to find out estimated build time. The facade image shown is for illustrative purposes only. * Pricing correct at time of publication, but subject to change without notice due to (not limited to) land delays and regulation changes. Package price excludes stamp duty on land, legal fees and conveyancing costs including titles and property report. Floorplan is a representation of a standard facade unless otherwise stated. H & L reserves the right to alter the images or descriptions without notice. External & Internal photographs are for visual purposes only. Finance eligibility will depend on individual circumstances and applicable lending criteria. Price advertised is inclusive of the First Home Buyer Grant. If this is not applicable to you, then $10,000 will need to be added to the advertised price. Please refer to the SRO website regarding eligibility (www.sro.vic.gov.au/first-home-owner#fhog).

Read more
Head Office Location:

56 Barclay Street Derrimut Melbourne VIC 3026

Request from Home Builder
Enquire about this design