Blooming with Possibilities

Lo and Behold, it’s a beautiful day in Greenvale. Welcome to everyday serenity. A place to wake up and breath in the fresh air that surrounds you. This is a place you can put down your roots and connect with family, friends, and neighbours. A Place like no other. A location that offers a cornucopia of treasures in every direction—this is Leafwood Estate.

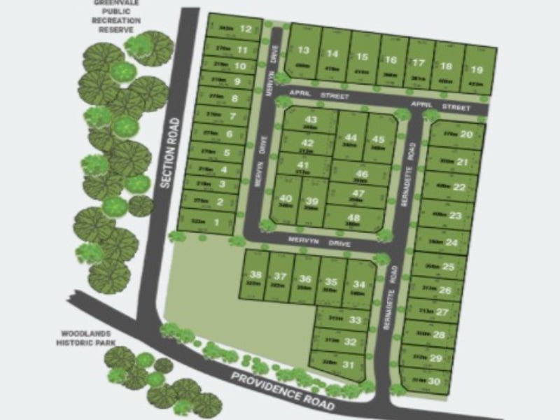
LEAFWOOD ESTATE

is nestled amidst the beautiful GREENVALE located in the picturesque Melbourne’s North.

 

In a secluded setting less than 26 km from Melbourne CBD, at the crossroads of Providence Road and Section Road, adjacent to Greenvale Public Recreation Reserve, surrounded by the nearby picturesque grassy Greenvale Reservoir Park and Woodlands Historic Park; and within close proximate to local shopping centres, leisure and community facilities including a well serviced network of public transport - is where one can find the tranquil & "leafy"
LEAFWOOD ESTATE.

Read more

Contact us for further information, lots & pricing

Let us do the hard work & connect you with the right land, house & land, and pricing for you.

Enquire